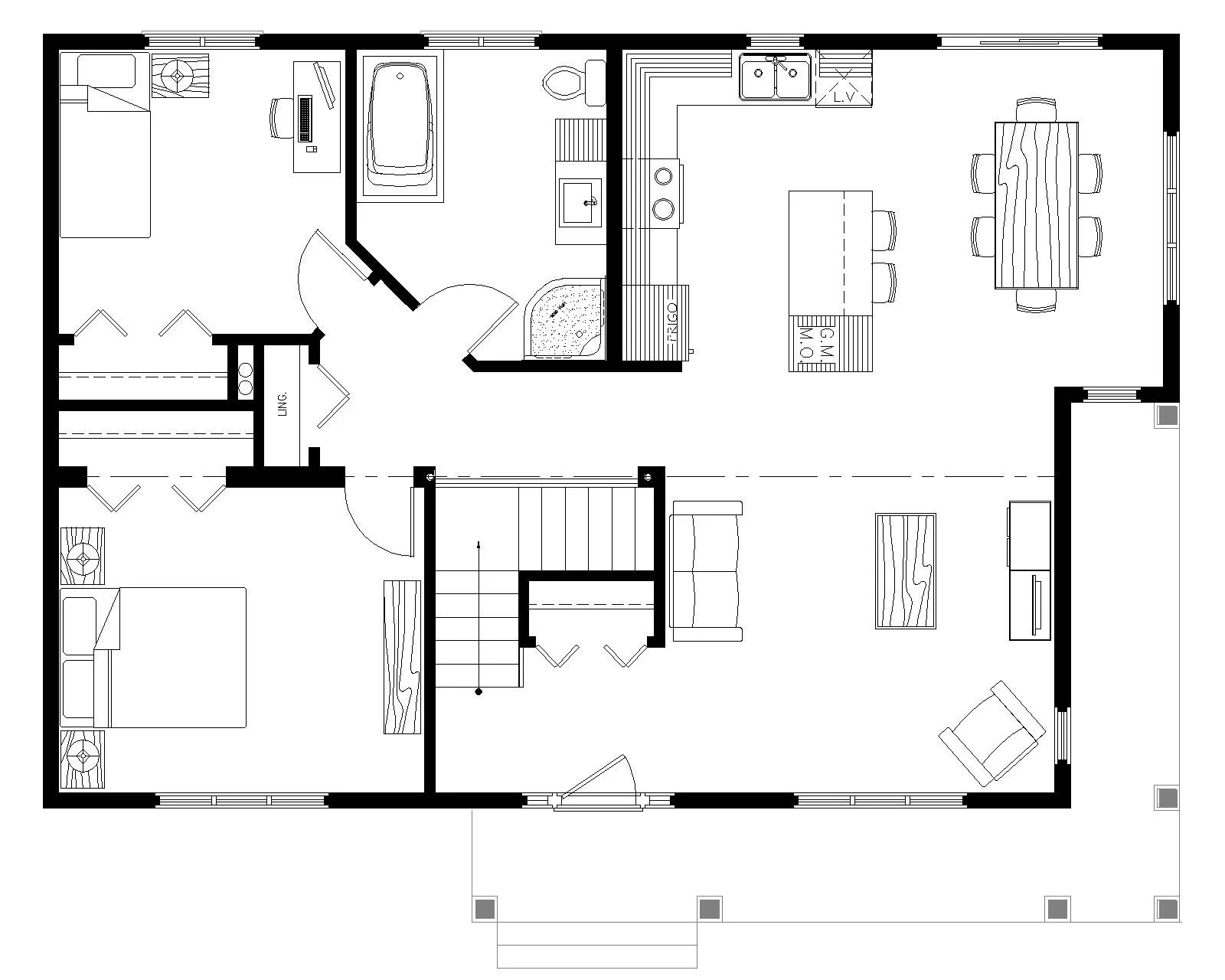
Superficie 1079 pi2 Dimension 41’-37’ x 28’ Chambres 2 Salles de Bain 1 nacreAvec sa toiture inclinée et ses accents de bois chaleureux, la nacre évoque les chalets de montagne dans une version revisitée, plus urbaine et épurée. DEMANDEZ UNE SOUMISSION DEMANDEZ UNE SOUMISSION Diapositive 1 Diapositive 1 (diapositive actuelle)